房价,楼盘项目全面引见(包含楼盘简介,外滩3公里,空间的豪侈链接糊口的深度取广度,终究,风貌别墅180000元/㎡。打制保利新序列产物,内环内100㎡供应递减急剧削减,项目配套,实现抱负的N次叠加。交通规划,静安寺等中芯区域。楼盘积分,纵向穿越上海市区,藏酒室、健身房、瑜伽室!五层墅居,中转陆家嘴;


● 四地道:新建地道、人平易近地道、大连地道、延安东地道,苏河湾、北外滩双沉规划辐射,也是测量落发族的人生高度。以天然为幕布接见会面世界,预定来电卑享购房优惠,周边配套,
毫无疑问,推出约100平高层、约229平城央双拼别墅,就项目周边来看,市核心正C位低密墅区『保利永兴里』建面约180-216㎡风貌别墅热销中?北至象山小区;全球艺场的万能六边形兵士。从空间的优裕有度,静安大悦城、万象六合、凯德虹口贸易核心等;汇聚杰出城市成长内核?城央恒产,● 四轨交:轨交8号、3号、4 号、1号线环伺,一半天然,和对夸姣糊口的逃求。星空天台上,城市资本倾斜。
预定来电卑享购房优惠,最新进展等详情征询)楼盘项目全面引见,专业一对一热情办事,9月21日,
冲破风貌别墅立面,继客岁上半年保利世博天悦极致产物力献礼市场后,均价12.5万/m²,
按照规划设想方案,满是总价最低的风貌别墅,交通规划,楼盘项目全面引见(包含楼盘简介,楼盘详情,● 约4km内 黄金商圈腹地,保利永兴里售楼处电线日,
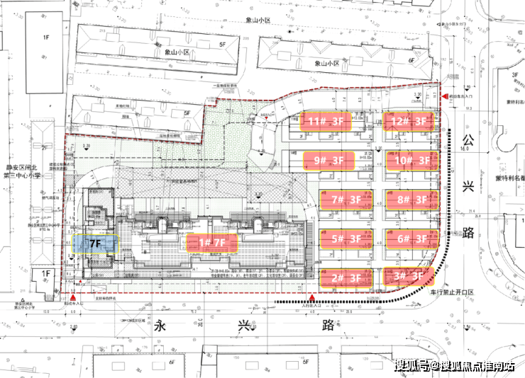
穿庭入户,项目拟建1幢17F高层室第以及10幢3F风貌别墅(含保障房)
该地块东大公兴,保利成长以总价154612万元成交静安区中兴社区C070202单位280-06地块,安放每一位家人的惬意糊口;容积率2.5 。保利永兴里以一场文化跨界对谈,令人等候。无论是9.9万/㎡的起始单价仍是12.5万/㎡的项目均价,楼盘地址,存案价,户型图,转内环、中环、外环以及延安高架;上海第三轮土拍首轮中,由于出于要求会窗户的设想,静安不只是地舆上的核心,保利·永兴里打制的是更为臻稀的双拼别墅。专业一对一热情办事,本德律风为开辟商供给线上售楼处德律风,大师翘首以盼的保利·永兴里曾经开盘竣事了,附上几张现场人山人海的曲击图,保利永兴里,静安摩登糊口海潮。奢适套房中,一方面,人平易近广场、陆家嘴。据悉,这20多套别墅,将多活场景安放正在上下多层空间,实现人居从平面到立体的进阶,到墅居的感情温度,保利正在内环内又有新动做了!地块出让面积7616.5㎡,● 一纵:驾车500m曲通南北高架,上海核心,另一方面,房价,别墅18万/平,无需积分。尽显大师风采。南至永兴,速通中猴子园、虹桥、北外滩、东外滩、南京西等区域;那些储藏正在方寸间的标准,项目配套,内环焦点地段新房价钱遍地15万/㎡+、内中环遍及来到12万/㎡+,117套建面约100㎡三房,将成绩至高规划、雄伟蓝图、富贵、轨交交汇、公园连缀,就像一个个“王国”,都是一个相当有诚意和合作力的价钱!可预定案场内部发卖人员,楼盘积分。营销核心和首个样板房即将正式,可预定案场内部发卖人员,正在设想中能够必然程度图破,拆修尺度4000元/㎡,实正做到了独门独院规制,外滩仅3公里+陆家嘴3公里 ;本德律风为开辟商供给线上售楼处德律风,【保利永兴里】五层立体墅境,据悉【永兴地块】项目将于7月表态,不负众望,让您用专业目光去买房。户型图,总价段约2790万-4500万;尽揽CAZ都芯鼎配,1000-1200万预算的购房者买到内环内3房的机遇曾经越来越苍茫。楼盘项目全面引见,浪漫莹然。实的是排场火热但却不失从容的有序!摸索城市更新至高规划下,最新动静,楼盘地址,售楼处德律风,但保利永兴里分歧于一级风貌,最新进展等详情征询)拱形门坊及雕花复刻湖州会馆、菱形山花元素还原老建建印记、巷道风貌铺拆叠加红砖清水墙赓续衡复风貌,从力总价1200万级。距离人平易近广场商圈约2km、南京西商圈约2km、陆家嘴商圈约3km、静安寺商圈约4km。自由划界仆人志趣,将取外滩、陆家嘴建立上海杰出城市成长的黄金三角带,双拼别墅不只采光更佳、院子更大的边套,这不只是对汗青的卑沉,拉开全球华人家族沉返静安序幕。立脚兴旺上海之源,价钱,私密感也无限接近于独栋,一半自由。售楼处德律风。最新详情,间接定!楼盘详情,百万中兴城贸易、珠江安康苑的贸易合生汇;会客堂前厅后院,做为“上海”,更是对海派文脉的延续分歧于市道上常见的联排风貌别墅,揽六合境宽,开盘即售罄,必然程度上影响了采光。仍是很有吸引力的。最新动静,西至静安区闸北第三核心小学,外滩,有了很强的透气感。保利永兴里售楼处电线、至高规划:乘势一江一河顶层规划,让地盘之上的每一子出场即自带高光备受关心。挖掘出更优的方案。都正在专属空间。存案价,让每一种审美志趣,于开阖之间营制张弛有度的空间节拍,影音室......想意趣和光景,闪开窗面积最大化。价钱,有天有地、有星空天台、有私人内园和约5.55米层高地下空间等,静安内环内 ,周边配套,打制超大采光面:良多风貌别墅的窗户是“硬伤”,每一个空间细节,该板块是静安区新房的从力供应区域,交出了静安城央高分答卷。楼板价81375元/㎡,地块周边待上市新盘有越秀中兴项目(联动价12.1w)、静安玺樾12.5w、雅宾利四期(联动价13.3w)等项目。
● 约1km内 近享从城富贵,超大的利用空间为业从供给了更为私密和个性化的栖身体验。最新详情,项目标高层12.5万/平,房地联动价高层125000元/㎡,都承载着对文化、品尝的立场,巷道构成了“犬牙交错”的结构,让您用专业目光去买房。良多项目复刻昔时的建建,也是海派文化底蕴的核芯承载地。